|
|
 |
| ImmoID: 80754 Gemütliche 3-Z/K/B/ Maisonette-ETW mit 2 Balkonen in 76344 Eggenstein |
| |
 |
| Detailansicht |
zurück |
 |
| |
|
Umgebungskarte
|
| |
 |
| Weitere Ansichten |
 |
| |
|
| |
 |
| Daten |
 |
| |
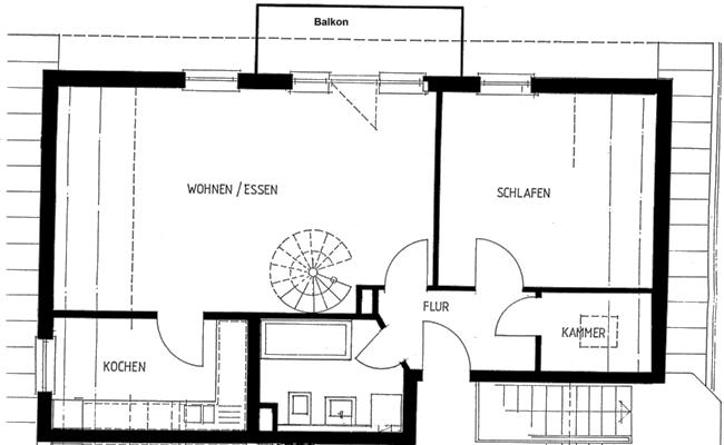
| Beschreibung: | Diese freundliche 3-Z/K/B-Maisonette-ETW bietet Ihnen modernen Wohnkomfort auf ca. 81,89 m² Wohnfläche.
Auf der 1. Wohnebene im DG befinden sich der großzügige Wohn-/Essbereich mit Zugang zur Küche und zum Balkon, das geräumige Schlafzimmer, die Diele mit Abstellraum und das Bad. Das hell geflieste Tageslicht-Bad ist ausgestattet mit Waschtisch, Badewanne und WC.
Über die Wendeltreppe erreichen Sie das 2.DG, wo sich das große Galeriezimmer mit Zugang zum oberen Balkon und ein weiteres hell gefliestes Tageslicht-Duschbad mit Waschtisch und WC befinden. Die Dachschrägen und die beiden nach Osten ausgerichteten Balkone prägen den freundlichen und gemütlichen Charakter dieser schönen Maisonette-Wohnung.
Zur Wohnung gehören ein Tiefgaragen-Stellplatz, ein Kellerraum, sowie weitere gemeinschaftliche Nutzräume.
Das Anwesen wird betreut durch die Hausverwaltung und den Hausmeister, die gemeinsam für den reibungslosen wirtschaftlichen und technischen Ablauf sorgen.
Die Wohnung ist derzeit vermietet und daher für Eigennutzer und Kapitalanleger geeignet. |
| Ort: | 76344 Eggenstein |
| |
| Lage: | Die Gemeinde Eggenstein-Leopoldshafen mit seinen ca. 15.000 Einwohnern liegt ca. 12 km nördlich von Karlsruhe und besitzt eine sehr gute Infrastruktur.
Die angebotene Wohnung liegt im DG und 2.DG in einem 1994 erbauten Mehrfamilienhaus mit 10 Wohneinheiten im Ortsteil Eggenstein.
Zum nächsten Stadtbahn-Anschluss (Eggenstein Süd) sind es nur wenige Meter. Der Zubringer zur B36 in Richtung Karlsruhe und Bruchsal ist in ca. 800 Meter erreicht. Einkaufsmöglichkeiten, Kindergarten und Grundschule sind in wenigen Minuten zu Fuß oder mit dem Fahrrad bequem zu erreichen.
Erholung und Freizeitaktivitäten finden Sie in den nahe gelegenen Naherholungsgebieten der Rheinauen und im Hardtwald. |
| Ausstattung: | + Gas-ZH
+ Kunststoff-Isolierglasfenster
+ Kunststoff-Rollläden
+ Bad mit Waschtisch, Badewanne und WC im 1.DG
+ Duschbad mit Waschtisch und WC im 2.DG
+ Tiefgaragenstellplatz |
| Sonstiges: | Bitte haben Sie Verständnis dafür, dass wir Ihre Anfrage nur dann bearbeiten können, wenn uns Name und postalische Anschrift des/der Interessenten bekannt sind. Wir sind allein beauftragt. |
| |
| Kaufpreis: | 185.000,00 € |
| | |
| Anzahl Zimmer: | 3 |
| Wohnfläche: | 82 m² |
| |
| Courtage: | 3,57% Käuferprov. (inkl. MwSt) |
| Daten Energieausweis: | |
| Angaben Energieausweis: | Angaben soweit vorliegend, bzw. verfügbar. |
|
| |
 |
| Expose |
 |
| |
| Zum Drucken oder Aufbewahren können Sie das Expose herunterladen
|
| |
 |
| Immo-SuchAgent () |
 |
| |
| Einfach die Eckdaten Ihrer Wunschimmobilie eingeben und auch in Zukunft informiert bleiben! |
| |
 |
| Objektmerker |
 |
| |
| Dem Objektmerker hinzufügen. |
| |
 |
| Kontaktformular |
 |
| |
|
|
| |
| Rechtlicher Hinweis: Für die Inhalte sowie Richtigkeit und Aktualität des Angebots ist allein der Anbieter verantwortlich. Weitere gesetzlich vorgeschriebene Angaben zum Anbieter entnehmen Sie bitte, sofern nicht unter den weiteren Informationen des Anbieters angegeben, dessen eigener Webseite die wir unter genannter Seite anführen. Wenn Sie Ihre Telefonnummer angeben, geben Sie Ihre Einwilligung vom Anbieter zurückgerufen zu werden. |
|
 |
|