|
|
 |
| ImmoID: 110293 Vielseitig nutzbare Lagerhalle in bester Lage von Ettlingen – mit optionalen Flächen am Standort |
| |
 |
| Detailansicht |
zurück |
 |
| |
|
Umgebungskarte
|
| |
 |
| Weitere Ansichten |
 |
| |
|
| |
 |
| Daten |
 |
| |
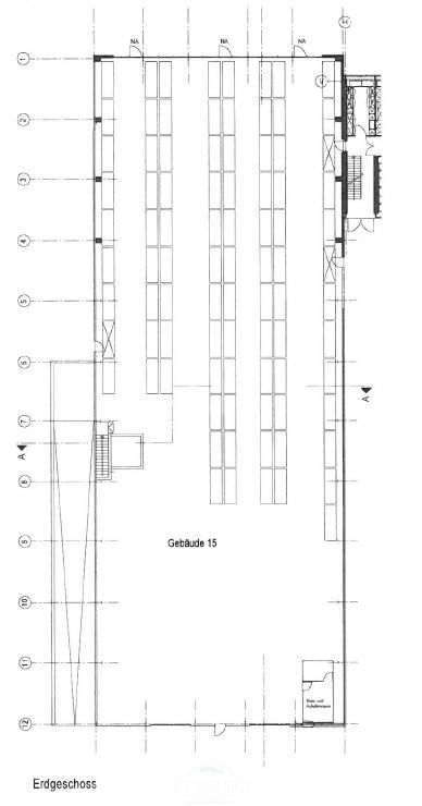
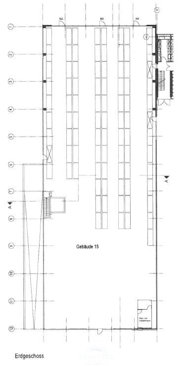
| Beschreibung: | Zur Vermietung steht eine großzügige, moderne Lagerhalle in verkehrsgünstiger Lage im Raum Ettlingen. Die Halle besticht durch ihre besondere Höhe und ist somit ideal für Hochregallagerung oder andere gewerbliche Nutzungen mit Platzbedarf geeignet.
Zwei große, elektrische Rolltore sorgen für einen bequemen Zugang für LKWs und Transportfahrzeuge. Die Halle ist mit zwei fest installierten Ladestationen für Gabelstapler ausgestattet – optimal für einen reibungslosen und effizienten Betriebsablauf.
Ein kleines, funktional ausgestattetes Verwaltungsbüro ist direkt an die Halle angebunden und bietet Platz für Organisation, Disposition oder Verwaltungstätigkeiten.
Auf dem Grundstück stehen zudem weitere Gewerbeflächen zur Verfügung, die bei Bedarf flexibel kombiniert und zusätzlich angemietet werden können:
• Büroflächen – ideal für Verwaltung, Planung oder Kundenservice
• Kommissionslager – optimal für effiziente logistische Abläufe
• Kühllager – geeignet für temperaturgeführte Waren
• Hochregallager – für platzsparende und strukturierte Lagerlösungen
• Außenstellplätze – separat anmietbar, ideal für Mitarbeitende, Kunden oder den Fuhrpark
Alle Flächen befinden sich auf demselben Gelände und lassen sich individuell zusammenstellen. So entsteht ein Standort, der genau auf die Anforderungen Ihres Unternehmens zugeschnitten ist. |
| Ort: | 76275 Ettlingen |
| |
| Lage: | Das Objekt befindet sich in einem etablierten Gewerbegebiet in Ettlingen, südlich von Karlsruhe. Die Anbindung an das überregionale Verkehrsnetz ist sehr gut. Die Autobahn A5 ist in wenigen Minuten erreichbar und ermöglicht eine schnelle Verbindung in Richtung Karlsruhe, Frankfurt und Basel. Ergänzend dazu verläuft die Bundesstraße B3 in unmittelbarer Nähe.
Der Standort verfügt über eine gut ausgebaute Infrastruktur. Einrichtungen des täglichen Bedarfs sowie gastronomische Angebote befinden sich im näheren Umfeld. Die Ettlinger Innenstadt ist in kurzer Zeit erreichbar. Eine Anbindung an den öffentlichen Nahverkehr ist ebenfalls gegeben. |
| Ausstattung: | - hohe Lagerhalle – bestens geeignet für Hochregale oder sperrige Güter
- zwei große Rolltore – ideal für Anlieferung und Versand
- ebenerdig befahrbar
- zwei Gabelstapler-Ladestationen vorhanden
- integriertes Verwaltungsbüro
- optionale Flächen verfügbar |
| |
| Anbieter-Objekt-Nr.: | 2025040 |
| Daten Energieausweis: | |
| Angaben Energieausweis: | Angaben soweit vorliegend, bzw. verfügbar. |
|
| |
 |
| Expose |
 |
| |
| Zum Drucken oder Aufbewahren können Sie das Expose herunterladen
|
| |
 |
| Immo-SuchAgent () |
 |
| |
| Einfach die Eckdaten Ihrer Wunschimmobilie eingeben und auch in Zukunft informiert bleiben! |
| |
 |
| Objektmerker |
 |
| |
| Dem Objektmerker hinzufügen. |
| |
 |
| Kontaktformular |
 |
| |
|
|
| |
| Rechtlicher Hinweis: Für die Inhalte sowie Richtigkeit und Aktualität des Angebots ist allein der Anbieter verantwortlich. Weitere gesetzlich vorgeschriebene Angaben zum Anbieter entnehmen Sie bitte, sofern nicht unter den weiteren Informationen des Anbieters angegeben, dessen eigener Webseite die wir unter genannter Seite anführen. Wenn Sie Ihre Telefonnummer angeben, geben Sie Ihre Einwilligung vom Anbieter zurückgerufen zu werden. |
|
 |
|