|
|
 |
| ImmoID: 110257 Helle Büroflächen in bevorzugter Lage KA-Nordost |
| |
 |
| Detailansicht |
zurück |
 |
| |
|
Umgebungskarte
|
| |
 |
| Weitere Ansichten |
 |
| |
|
| |
 |
| Daten |
 |
| |
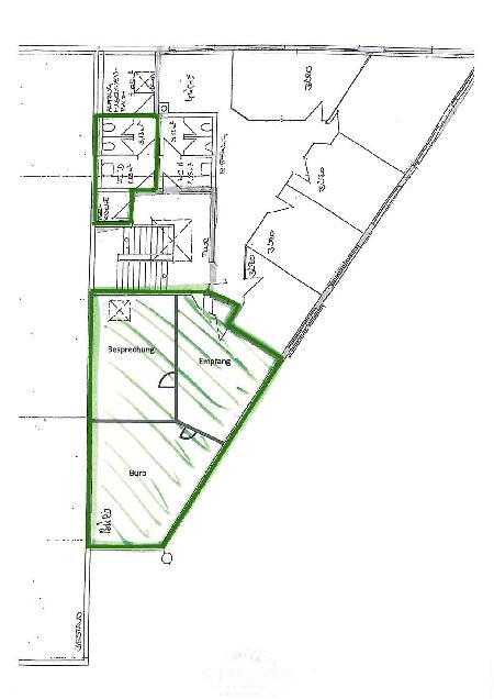
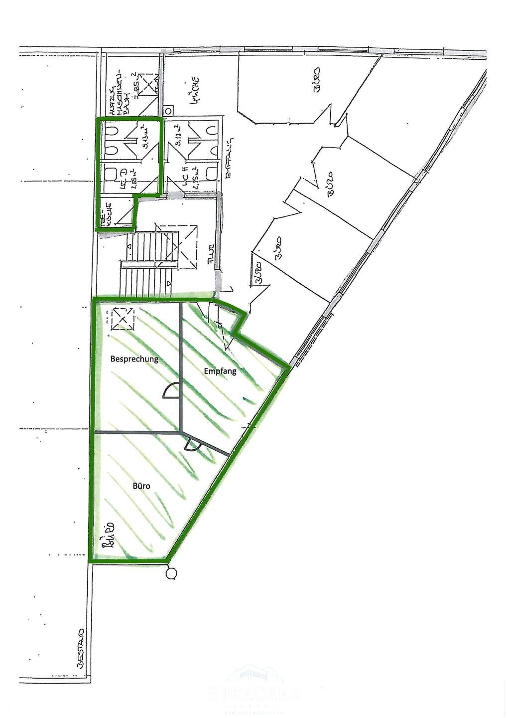
| Beschreibung: | Die zur Vermietung stehende Bürofläche befindet sich im 2. Obereschoss eines gepflegten Bürogebäudes. Derzeit können ca. 92,35 m² Fläche angemietet werden. Diese unterteilt sich mittels Trennwände aus Glaselementen in 2 Büroräume und einen großzügigen Flur bzw. Innenbereich. Hier lässt sich wunderbar ein schöner Empfangsbereich integrieren.
Kabelkanäle sind unterhalb der Fensterbänke vorhanden.
WC`s sowie eine kleine Teeküchenmöglichkeit befinden sich zur alleinigen Nutzung im Treppenhaus.
Die Mietfläche wird im renovierten Zustand übergeben.
PKW-Stellplätze können auf dem Grundstück separat mit angemietet werden.
Bezug der Fläche ist kurzfristig möglich. |
| Ort: | 76139 Karlsruhe |
| |
| Lage: | Das Bürogebäude befindet sich im Industriegebiet Nordost, nahe der Bundesautobahn 5, bzw. der BAB-Anschlußstelle "KA-Nord". Im Umfeld sind internationale Unternehmen, ein Baumarkt, Möbelmärkte und verschiedene Handels-unternehmen angesiedelt.
Öffentliche Stellplätze finden sich entlang der Strasse in unmittelbarer Nähe zum Grundstück.
Bushaltestellen (Linie 32 und 31) sind nur wenige Meter entfernt. |
| Sonstiges: | Ein Energieausweis liegt derzeit noch nicht vor. |
| |
| Bürofläche: | 92.35 m² |
| Anbieter-Objekt-Nr.: | 2024032 - Büro 92 m² |
| Daten Energieausweis: | Befeuerungsart: Gas
|
| Angaben Energieausweis: | Befeuerungsart: Gas Angaben soweit vorliegend, bzw. verfügbar. |
|
| |
 |
| Expose |
 |
| |
| Zum Drucken oder Aufbewahren können Sie das Expose herunterladen
|
| |
 |
| Immo-SuchAgent () |
 |
| |
| Einfach die Eckdaten Ihrer Wunschimmobilie eingeben und auch in Zukunft informiert bleiben! |
| |
 |
| Objektmerker |
 |
| |
| Dem Objektmerker hinzufügen. |
| |
 |
| Kontaktformular |
 |
| |
|
|
| |
| Rechtlicher Hinweis: Für die Inhalte sowie Richtigkeit und Aktualität des Angebots ist allein der Anbieter verantwortlich. Weitere gesetzlich vorgeschriebene Angaben zum Anbieter entnehmen Sie bitte, sofern nicht unter den weiteren Informationen des Anbieters angegeben, dessen eigener Webseite die wir unter genannter Seite anführen. Wenn Sie Ihre Telefonnummer angeben, geben Sie Ihre Einwilligung vom Anbieter zurückgerufen zu werden. |
|
 |
|