|
|
 |
| ImmoID: 110254 Bürohaus - leerstehend - in Citylage von Karlsruhe - unweit vom Schloß und der Uni |
| |
 |
| Detailansicht |
zurück |
 |
| |
|
Umgebungskarte
|
| |
 |
| Weitere Ansichten |
 |
| |
|
| |
 |
| Daten |
 |
| |
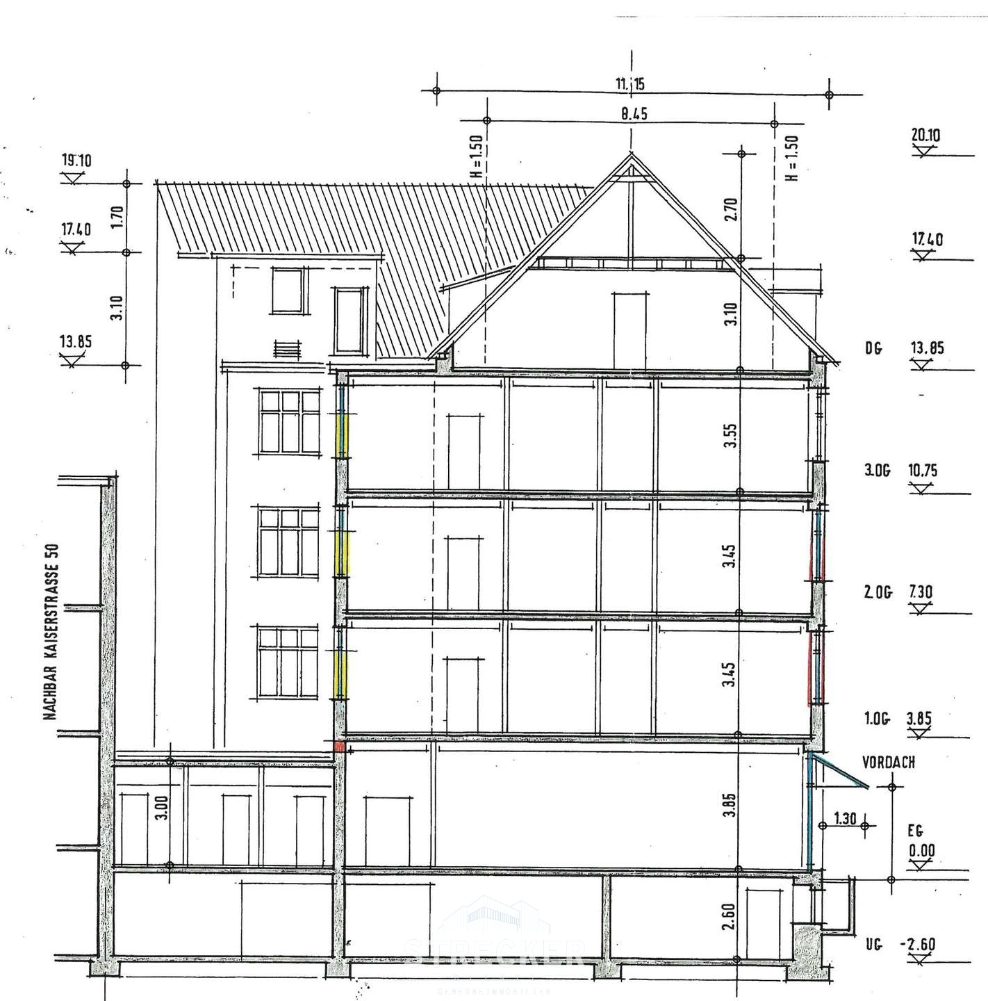
| Beschreibung: | Zum Verkauf kommt ein imposantes 5 geschossiges Gebäude unweit vom Schloß und Uni in Karlsruhe.
Ursprünglich zwei Gebäude mit 2 Hausnummern wurde zu einer wirtschaftlichen Einheit zusammengelegt. Die Gesamtfläche beträgt ca. 1.240 m² einschließlich der Kellerräume.
Die Etagen sind sowohl über ein Treppenhaus als auch einen Personenlift erschlossen.
Die Größe der Etagen teilt sich wie folgt auf:
UG - 224,46 m² - verschiedene trockene Lagerräume
EG - 223,08 m² - kleiner Innenhof, ehem. Schulungs- und Verkäufsräume zzgl. Flur, Vorraum und Toiletten. 3 eigene strassenseitige Zugänge zum Gebäude sind hier vorhanden.
1. OG - 212,12 m² - 4 Räume, Flur, Garderobe, Teeküche und Toiletten
2. OG - 216,45 m² - 6 - 7 Räume, Teeküche, Flur, sanitäre Anlagen
3. OG - 211,17 m² - 5 Büros, Aktenlager, Teeküche, Putzraum Flur, sanitäre Anlagen
DG - 152,76 m² - 6 Büros, Teeküche, Flur, Toiletten.
Die Grundstücksgröße beträgt 345 m². Das vorher als Schulungs- und Büro genutzte Gebäude steht z.Zt. komplett leer und eignet sich ideal zur Projektentwicklung. |
| Ort: | 76133 Karlsruhe |
| |
| Lage: | Absolute Citylage wenige Meter sowohl von der Fußgängerzone in der Kaiserstrasse, als auch vom Schloßgarten und KIT-Campus entfernt. Das Gebäude liegt im Sanierungsgebiet "Innenstadt Ost". |
| Sonstiges: | Ein Energieausweis wird gerade vom Verkäufer erstellt. Wir reichen diesen nach, sobald er uns vorliegt. |
| |
| Kaufpreis: | 3.000.000,00 € |
| | |
| Grundstücksfläche: | 345 m² |
| Bürofläche: | 1240 m² |
| |
| Courtage: | 3,57 % (inkl. MwSt) |
| Anbieter-Objekt-Nr.: | 2024065 |
| Daten Energieausweis: | |
| Angaben Energieausweis: | Angaben soweit vorliegend, bzw. verfügbar. |
|
| |
 |
| Expose |
 |
| |
| Zum Drucken oder Aufbewahren können Sie das Expose herunterladen
|
| |
 |
| Immo-SuchAgent () |
 |
| |
| Einfach die Eckdaten Ihrer Wunschimmobilie eingeben und auch in Zukunft informiert bleiben! |
| |
 |
| Objektmerker |
 |
| |
| Dem Objektmerker hinzufügen. |
| |
 |
| Kontaktformular |
 |
| |
|
|
| |
| Rechtlicher Hinweis: Für die Inhalte sowie Richtigkeit und Aktualität des Angebots ist allein der Anbieter verantwortlich. Weitere gesetzlich vorgeschriebene Angaben zum Anbieter entnehmen Sie bitte, sofern nicht unter den weiteren Informationen des Anbieters angegeben, dessen eigener Webseite die wir unter genannter Seite anführen. Wenn Sie Ihre Telefonnummer angeben, geben Sie Ihre Einwilligung vom Anbieter zurückgerufen zu werden. |
|
 |
|