trenner
Immobilien Karlsruhe
trenner
home      suchen      wohnimmobilien      gewerbeimmobilien      firmen & makler      gesuch aufgeben      dienstleistungen      immo-magazin      
trenner
trenner
trenner trenner
Marktplatz
Gesuch aufgeben
Gesuche anzeigen
trenner
Immobilien
Wohnung Miete
Wohnung Kauf
Haus Miete
Haus Kauf
Möbliertes Wohnen
Alle Grundstücke
Grundstücke (Miete/Pacht)
Grundstücke (Kauf)
trenner
Suchen
Schnellsuche ImmoID
Erweiterte Suche
trenner
Immobilien anbieten
Private Anbieter
Gewerbliche Anbieter
trenner
Login
trenner
trenner
trenner
trenner Passwort vergessen
trenner Registrieren
trenner Als Makler registrieren
trenner
ImmoID: 110253    Lager-/Ausstellungsfläche mit Büro in KA-Nordost
 
Detailansicht zurück
 
Kartenansicht Umgebungskarte
 
Weitere Ansichten
 
 
Daten
 
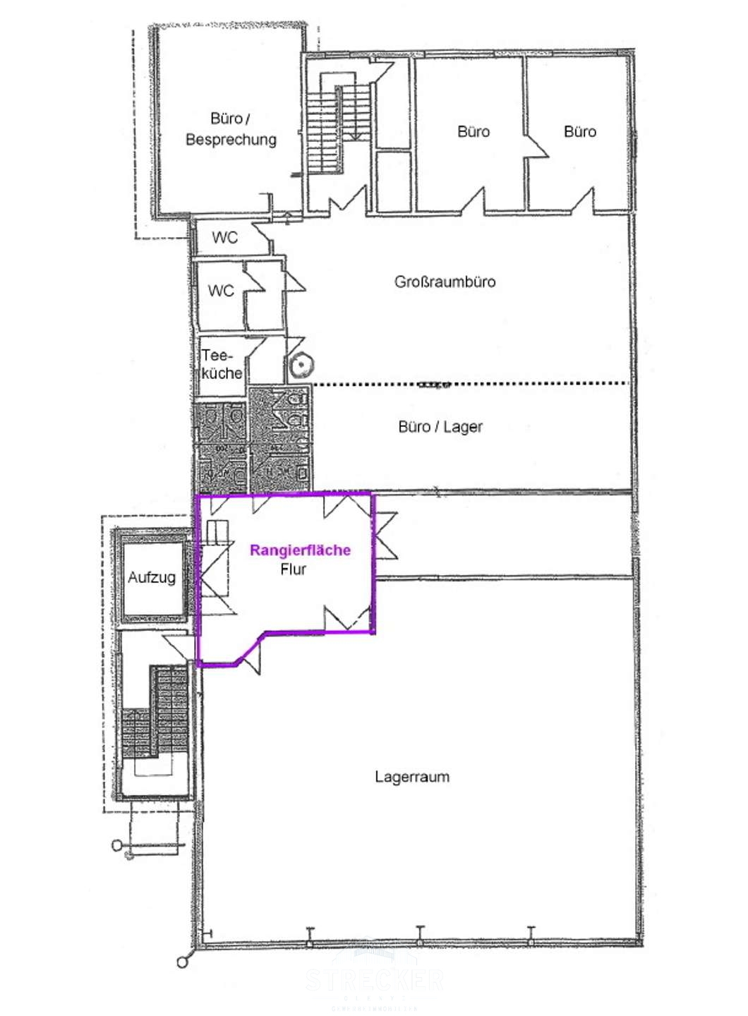
Beschreibung:Die zur Anmietung stehende Fläche hat eine Gesamtgröße von ca. 294 m² und befindet sich im 1. Obergeschoss eines Gewerbeanwesens.

Die Räumlichkeiten teilen sich sowohl in Büro-, als auch in Lagerflächen auf. Das Büro unterteilt sich in ein Großraumbüro, zwei separat miteinander verbundene Büroräume sowie zwei getrennte WC`s (eines mit Dusche) und eine Teeküche. Über eine Wendeltreppe gelangen Sie in einen kleinen Archivbereich mit Einbauschränken. Durch versetzen der Wände ist sowohl eine Vergrößerung des Büros, als auch des Lagerbereichs möglich.

Die Fläche ist über einen Lastenaufzug (Tragkraft ca. 3 t) erschlossen.

Das Sheddach sorgt zusätzlich durch zahlreiche Glasflächen für ausreichend Tageslicht in den innenliegenden Räumen. Der Bürobereich verfügt über ein separates Treppenhaus und einen eigenen Hauseingang.

Der Bezug kann kurzfristig in Absprache erfolgen.
Ort:76139 Karlsruhe
Lage:Das Gewerbeobjekt befindet sich im Industriegebiet Nordost, nahe der Bundesautobahn 5, bzw. der BAB-Anschlußstelle "KA-Nord". Im Umfeld sind internationale Unternehmen, Baumärkte und Handelsunternehmen angesiedelt.
Pkw-Stellplätze stehen im Hof zur Anmietung zur Verfügung. Öffentliche Stellplätze finden sich entlang der Printzstraße/Junkersstraße.
Bushaltestellen (Linie 32 und 31) sind nur wenige Meter entfernt.
Sonstiges:Energieausweis liegt derzeit noch nicht vor. Alle Beträge sind Nettobeträge und verstehen sich zzgl. der gesetzl. MwSt.
Anbieter-Objekt-Nr.: 2025092
Daten Energieausweis: Befeuerungsart: Gas
Angaben Energieausweis: Befeuerungsart: Gas
Angaben soweit vorliegend, bzw. verfügbar.
 
Expose
 
Zum Drucken oder Aufbewahren können Sie das Expose herunterladen
 
Immo-SuchAgent (neu!)
 
Einfach die Eckdaten Ihrer Wunschimmobilie eingeben und auch in Zukunft informiert bleiben!
 
Objektmerker
 
Dem Objektmerker hinzufügen.
 
Kontaktformular
 
Strecker-Olenyi
Frau Sabrina Hoymann

Telefon: (0721) 96 24 6-81
Telefax: 07 21 – 9 62 46 – 69

Alle Objekte des Anbieters anzeigen

Weitere Informationen zum Anbieter
Anrede:
Vorname*:
Nachname*:
Straße / Nr*:
PLZ / Stadt*:
Telefon:
E-Mail*:
Ihre Wünsche:  
Bitte informieren Sie mich auch über vergleichbare Objekte.
Ich habe die Datenschutzerklärung gelesen und bestätige die Verwendung meiner Daten.
 
Rechtlicher Hinweis: Für die Inhalte sowie Richtigkeit und Aktualität des Angebots ist allein der Anbieter verantwortlich. Weitere gesetzlich vorgeschriebene Angaben zum Anbieter entnehmen Sie bitte, sofern nicht unter den weiteren Informationen des Anbieters angegeben, dessen eigener Webseite die wir unter genannter Seite anführen. Wenn Sie Ihre Telefonnummer angeben, geben Sie Ihre Einwilligung vom Anbieter zurückgerufen zu werden.
trenner
 
mannheim fertighaus center
 
wertermittlung
 
wolf immobilien
 
trenner
trenner
:Datenschutzerklärung | Wohnung in Karlsruhe kaufen | Haus in Karlsruhe kaufen | Immobilien in Karlsruhe | Immobilien in Pforzheim | Immobilien in Stuttgart | Kontakt | Impressum  | AGB