|
|
 |
| ImmoID: 110253 Lager-/Ausstellungsfläche mit Büro in KA-Nordost |
| |
 |
| Detailansicht |
zurück |
 |
| |
|
Umgebungskarte
|
| |
 |
| Weitere Ansichten |
 |
| |
|
| |
 |
| Daten |
 |
| |
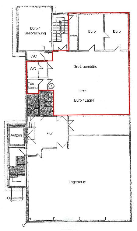
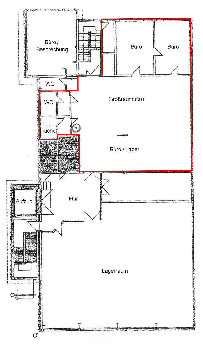
| Beschreibung: | Die zur Anmietung stehende Fläche hat eine Gesamtgröße von ca. 294 m² und befindet sich im 1. Obergeschoss eines Gewerbeanwesens.
Die Räumlichkeiten teilen sich sowohl in Büro-, als auch in Lagerflächen auf. Das Büro unterteilt sich in ein Großraumbüro, zwei separat miteinander verbundene Büroräume sowie zwei getrennte WC`s (eines mit Dusche) und eine Teeküche. Über eine Wendeltreppe gelangen Sie in einen kleinen Archivbereich mit Einbauschränken. Durch versetzen der Wände ist sowohl eine Vergrößerung des Büros, als auch des Lagerbereichs möglich.
Die Fläche ist über einen Lastenaufzug (Tragkraft ca. 3 t) erschlossen.
Das Sheddach sorgt zusätzlich durch zahlreiche Glasflächen für ausreichend Tageslicht in den innenliegenden Räumen. Der Bürobereich verfügt über ein separates Treppenhaus und einen eigenen Hauseingang.
Der Bezug kann kurzfristig in Absprache erfolgen. |
| Ort: | 76139 Karlsruhe |
| |
| Lage: | Das Gewerbeobjekt befindet sich im Industriegebiet Nordost, nahe der Bundesautobahn 5, bzw. der BAB-Anschlußstelle "KA-Nord". Im Umfeld sind internationale Unternehmen, Baumärkte und Handelsunternehmen angesiedelt.
Pkw-Stellplätze stehen im Hof zur Anmietung zur Verfügung. Öffentliche Stellplätze finden sich entlang der Printzstraße/Junkersstraße.
Bushaltestellen (Linie 32 und 31) sind nur wenige Meter entfernt. |
| Sonstiges: | Energieausweis liegt derzeit noch nicht vor.
Alle Beträge sind Nettobeträge und verstehen sich zzgl. der gesetzl. MwSt. |
| |
| Anbieter-Objekt-Nr.: | 2025092 |
| Daten Energieausweis: | Befeuerungsart: Gas
|
| Angaben Energieausweis: | Befeuerungsart: Gas Angaben soweit vorliegend, bzw. verfügbar. |
|
| |
 |
| Expose |
 |
| |
| Zum Drucken oder Aufbewahren können Sie das Expose herunterladen
|
| |
 |
| Immo-SuchAgent () |
 |
| |
| Einfach die Eckdaten Ihrer Wunschimmobilie eingeben und auch in Zukunft informiert bleiben! |
| |
 |
| Objektmerker |
 |
| |
| Dem Objektmerker hinzufügen. |
| |
 |
| Kontaktformular |
 |
| |
|
|
| |
| Rechtlicher Hinweis: Für die Inhalte sowie Richtigkeit und Aktualität des Angebots ist allein der Anbieter verantwortlich. Weitere gesetzlich vorgeschriebene Angaben zum Anbieter entnehmen Sie bitte, sofern nicht unter den weiteren Informationen des Anbieters angegeben, dessen eigener Webseite die wir unter genannter Seite anführen. Wenn Sie Ihre Telefonnummer angeben, geben Sie Ihre Einwilligung vom Anbieter zurückgerufen zu werden. |
|
 |
|