trenner
Immobilien Karlsruhe
trenner
home      suchen      wohnimmobilien      gewerbeimmobilien      firmen & makler      gesuch aufgeben      dienstleistungen      immo-magazin      
trenner
trenner
trenner trenner
Marktplatz
Gesuch aufgeben
Gesuche anzeigen
trenner
Immobilien
Wohnung Miete
Wohnung Kauf
Haus Miete
Haus Kauf
Möbliertes Wohnen
Alle Grundstücke
Grundstücke (Miete/Pacht)
Grundstücke (Kauf)
trenner
Suchen
Schnellsuche ImmoID
Erweiterte Suche
trenner
Immobilien anbieten
Private Anbieter
Gewerbliche Anbieter
trenner
Login
trenner
trenner
trenner
trenner Passwort vergessen
trenner Registrieren
trenner Als Makler registrieren
trenner
ImmoID: 110212    Erstklassige Neubau Büro-/Ladenflächen in Baden-Baden
 
Detailansicht zurück
 
Kartenansicht Umgebungskarte
 
Weitere Ansichten
 
 
Daten
 
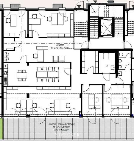
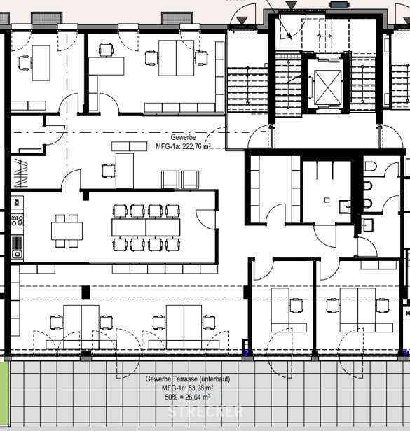
Beschreibung:Zur Vermietung stehen insgesamt nur noch 2 Gewerbeeinheiten mit jeweils ca. 249,40 m² und ca. 261,21 m².

Die Einheiten befinden sich im Erdgeschoss eines durch die Firma Weisenburger neu erstellten Wohn- & Geschäftshauses.

Ideal eignen sich die Mietflächen als Büro-/ Praxisflächen oder Ladengeschäfte. Auch steht eine Einheit zur gastronomischen Nutzung zur Verfügung.

Kanzlei - Büro - Handel - Gewerberäume mit viel Potenzial. Neubau, lichtdurchflutet im Erdgeschoss mit separatem Zugang.

Jetzt können Sie die Aufteilung der Räume und die Ausstattung noch mitbestimmen.

Der Mietpreis der Gewerbeeinheit im veredelten Rohbau beträgt 12,50 € netto /m² + NK + gesetzl. MwSt.
Ort:76532 Baden-Baden
Lage:Projekt "Wohnen an den Oosgärten" Baden-Baden, Zentrum Stadtteil Oos, Sinzheimer Straße. Viele umliegende Einzelhandelsgeschäfte, Banken, Apotheke etc. Sehr gute Infrastruktur, Bahnhof, B500, B3, Anschluss A5 und Flughafennähe. Hervorragende Busverbindungen in das Zentrum von Baden-Baden sowie den umliegenden Stadtteilen sind gegeben. Weitere öffentliche Parkplätze sind vorhanden.
Ausstattung:- Gewerberäume im Erdgeschoss
- Erstbezug
- barrierefrei
- bodentiefe, 3-fach isolierverglaste Fenster
- Glasfaser
- sanitäre Einrichtungen, Fliesen 30/60cm
- veredelter Rohbau
-Tiefgaragenstellplatz und Außenstellplätze können angemietet werden
Sonstiges:Alle Beträge sind Nettobeträge und verstehen sich zzgl. der gesetzl. MwSt.
Mietpreis pro qm:12,50 €
  
Anbieter-Objekt-Nr.: 2023015 - Vermietung
Daten Energieausweis: Energieausweises: Bedarf
Endenergiebedarf: 219.6
Angaben Energieausweis: Energieausweises: Bedarf
Endenergiebedarf: 219.6
Angaben soweit vorliegend, bzw. verfügbar.
 
Expose
 
Zum Drucken oder Aufbewahren können Sie das Expose herunterladen
 
Immo-SuchAgent (neu!)
 
Einfach die Eckdaten Ihrer Wunschimmobilie eingeben und auch in Zukunft informiert bleiben!
 
Objektmerker
 
Dem Objektmerker hinzufügen.
 
Kontaktformular
 
Strecker-Olenyi
Frau Sabrina Hoymann

Telefon: (0721) 96 24 6-81
Telefax: 07 21 – 9 62 46 – 69

Alle Objekte des Anbieters anzeigen

Weitere Informationen zum Anbieter
Anrede:
Vorname*:
Nachname*:
Straße / Nr*:
PLZ / Stadt*:
Telefon:
E-Mail*:
Ihre Wünsche:  
Bitte informieren Sie mich auch über vergleichbare Objekte.
Ich habe die Datenschutzerklärung gelesen und bestätige die Verwendung meiner Daten.
 
Rechtlicher Hinweis: Für die Inhalte sowie Richtigkeit und Aktualität des Angebots ist allein der Anbieter verantwortlich. Weitere gesetzlich vorgeschriebene Angaben zum Anbieter entnehmen Sie bitte, sofern nicht unter den weiteren Informationen des Anbieters angegeben, dessen eigener Webseite die wir unter genannter Seite anführen. Wenn Sie Ihre Telefonnummer angeben, geben Sie Ihre Einwilligung vom Anbieter zurückgerufen zu werden.
trenner
 
mannheim fertighaus center
 
wertermittlung
 
wolf immobilien
 
trenner
trenner
:Datenschutzerklärung | Wohnung in Karlsruhe kaufen | Haus in Karlsruhe kaufen | Immobilien in Karlsruhe | Immobilien in Pforzheim | Immobilien in Stuttgart | Kontakt | Impressum  | AGB