trenner
Immobilien Karlsruhe
trenner
home      suchen      wohnimmobilien      gewerbeimmobilien      firmen & makler      gesuch aufgeben      dienstleistungen      immo-magazin      
trenner
trenner
trenner trenner
Marktplatz
Gesuch aufgeben
Gesuche anzeigen
trenner
Immobilien
Wohnung Miete
Wohnung Kauf
Haus Miete
Haus Kauf
Möbliertes Wohnen
Alle Grundstücke
Grundstücke (Miete/Pacht)
Grundstücke (Kauf)
trenner
Suchen
Schnellsuche ImmoID
Erweiterte Suche
trenner
Immobilien anbieten
Private Anbieter
Gewerbliche Anbieter
trenner
Login
trenner
trenner
trenner
trenner Passwort vergessen
trenner Registrieren
trenner Als Makler registrieren
trenner
ImmoID: 110176    Produktionsstätte mit Bürobereichen
 
Detailansicht zurück
 
Kartenansicht Umgebungskarte
 
Weitere Ansichten
 
 
Daten
 
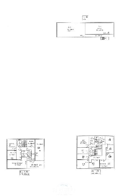
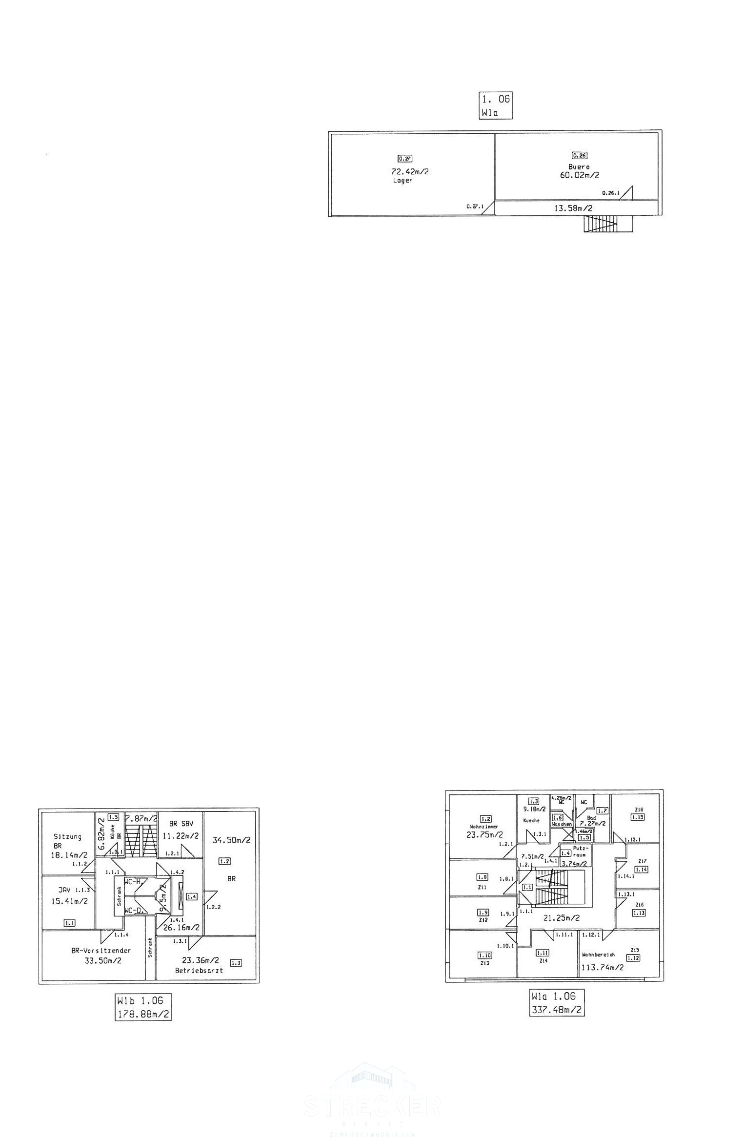
Beschreibung:Solitärgebäude Baujahr 1979, mit Erweiterungen in den Jahren 1982, 1985 und 1989. Es verfügt über eine Gesamtfläche von ca. 3.131 m². Davon frei werdend ca. 1.740 m² ebenerdig andienbare Produktionsfläche und ca. 200 m² freie Büro- /Verwaltungsflächen. Die lichte Hallenhöhe beträgt ca. 6,8 m. Eine 5to & 3to Kranbahn ist vorhanden. Die Grundstücksgröße beträgt 4.138 m². 20 Stellplätze sind auf dem Areal ausgewiesen. Ein separater Büroteilbereich mit ca. 520 m² ist für € 6.270,00/mtl. vermietet, bis 14.01.2029. Ein weiterer Büro-/ Produktionsbereich mit ca.670 m² ist für € 4.200,00/mtl. vermietet, bis 31.12.2027. Die Mietverträge haben eine Laufzeit mit einer mieterseitigen Verlängerungsoption.
Ort:75203 Königsbach-Stein
Lage:Die Mietfläche befindet sich in Königsbach.Stein im Gewerbegebiet "Mitteltal" des Ortsteil Stein. Die L611 bzw. L570 sind schnell und bequem erreichbar. Pforzheim ist ca. 10km Luflinie entfernt, Karlsruhe ca. 15km.
Sonstiges:Ein neuer Energieausweis wird gerade erstellt. Wir reichen diesen nach sobald er uns vorliegt
Kaufpreis:3.200.000,00 €
  
Grundstücksfläche: 4138 m²
Anbieter-Objekt-Nr.: 2025032
Daten Energieausweis: 
Angaben Energieausweis: Angaben soweit vorliegend, bzw. verfügbar.
 
Expose
 
Zum Drucken oder Aufbewahren können Sie das Expose herunterladen
 
Immo-SuchAgent (neu!)
 
Einfach die Eckdaten Ihrer Wunschimmobilie eingeben und auch in Zukunft informiert bleiben!
 
Objektmerker
 
Dem Objektmerker hinzufügen.
 
Kontaktformular
 
Strecker-Olenyi
Herr Joachim Raber

Telefon: (0721) 96 24 6-63
Telefax: 07 21 – 9 62 46 – 69

Alle Objekte des Anbieters anzeigen

Weitere Informationen zum Anbieter
Anrede:
Vorname*:
Nachname*:
Straße / Nr*:
PLZ / Stadt*:
Telefon:
E-Mail*:
Ihre Wünsche:  
Bitte informieren Sie mich auch über vergleichbare Objekte.
Ich habe die Datenschutzerklärung gelesen und bestätige die Verwendung meiner Daten.
 
Rechtlicher Hinweis: Für die Inhalte sowie Richtigkeit und Aktualität des Angebots ist allein der Anbieter verantwortlich. Weitere gesetzlich vorgeschriebene Angaben zum Anbieter entnehmen Sie bitte, sofern nicht unter den weiteren Informationen des Anbieters angegeben, dessen eigener Webseite die wir unter genannter Seite anführen. Wenn Sie Ihre Telefonnummer angeben, geben Sie Ihre Einwilligung vom Anbieter zurückgerufen zu werden.
trenner
 
mannheim fertighaus center
 
wertermittlung
 
trenner
trenner
:Datenschutzerklärung | Wohnung in Karlsruhe kaufen | Haus in Karlsruhe kaufen | Immobilien in Karlsruhe | Immobilien in Pforzheim | Immobilien in Stuttgart | Kontakt | Impressum  | AGB