trenner
Immobilien Karlsruhe
trenner
home      suchen      wohnimmobilien      gewerbeimmobilien      firmen & makler      gesuch aufgeben      dienstleistungen      immo-magazin      
trenner
trenner
trenner trenner
Marktplatz
Gesuch aufgeben
Gesuche anzeigen
trenner
Immobilien
Wohnung Miete
Wohnung Kauf
Haus Miete
Haus Kauf
Möbliertes Wohnen
Alle Grundstücke
Grundstücke (Miete/Pacht)
Grundstücke (Kauf)
trenner
Suchen
Schnellsuche ImmoID
Erweiterte Suche
trenner
Immobilien anbieten
Private Anbieter
Gewerbliche Anbieter
trenner
Login
trenner
trenner
trenner
trenner Passwort vergessen
trenner Registrieren
trenner Als Makler registrieren
trenner
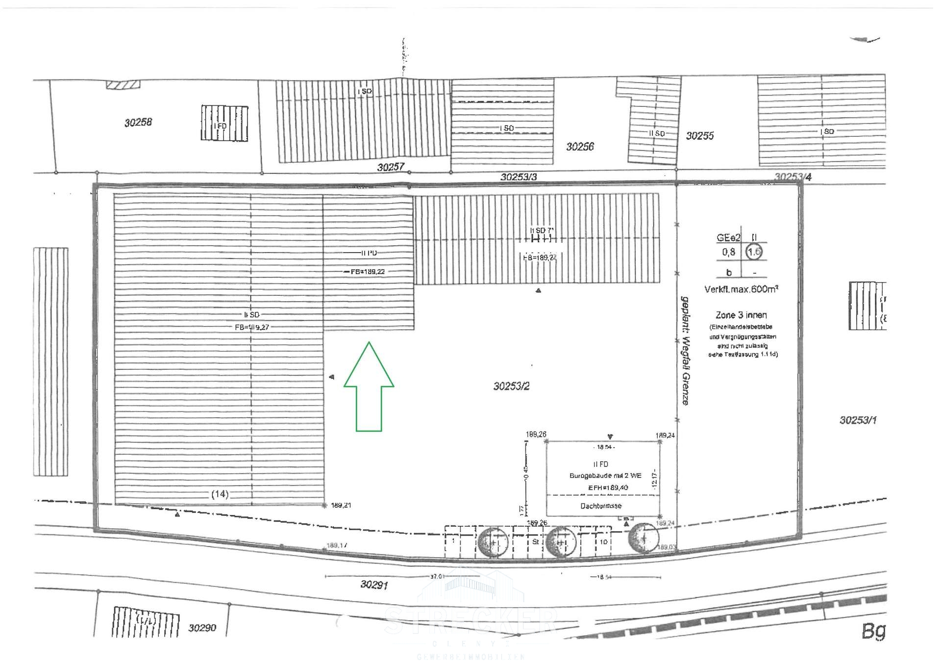
ImmoID: 110167    Lagerkalthalle mit Büro in der Nähe zur B-293 in Eppingen
 
Detailansicht zurück
 
Kartenansicht Umgebungskarte
 
Weitere Ansichten
 
 
Daten
 
Beschreibung:Die zur Vermietung kommende Gewerbefläche hat eine Gesamtfläche von ca. 740 m²
Diese teilt sich auf in:
a) Ebeneerdige Halle - unbeheizt - mit ca. 430 m² (Höhe 5,46 m)
b) weitere ca. 165 m² niedrige (Höhe 2,23 m) Lagerfläche
c) im Obergeschoß Aufenthaltsbereiche, Teeküche, Umkleiden, Sanitär und Duschen. mit ca. 145 m²
Die Halle ist über ein 4,20 m x 4,20 m großes Tor andienbar. Die Anmietung kann kurzfristig nach Vereinbarung erfolgen. Bei Bedarf stehen auf dem Gelände weitere Lagerflächen bzw. eine Büroetage zur Verfügung. Öffentliche Parkplätze befinden sich an der Strasse bzw. vor der Mietfläche.
Ort:75031 Eppingen
Lage:Die Halle befindet sich in verkehrsgünstiger Lage im westlichen Gewerbegebiet von Eppingen. Zur B-293 sind es wenige Fahrminuten. Eine S-Bahnhaltestelle ist wenige Meter entfernt. Im unmittelbaren Umfeld befinden sich außer mittelständischen Betrieben auch eine Lidl- und EDEKA-Filale, Bäckerei und ein DM-Markt. Eppingen selbst liegt in der Region Heilbronn-Franken ca. 22 km westlich von Heilbronn und ca. 41 km nordöstlich von Karlsruhe.
Sonstiges:Da es sich um eine unbeheizte Halle handelt, wird ein Energieausweis nicht benötigt.
Kaltmiete:2.345,00 €
  
Anbieter-Objekt-Nr.: 2024022
Daten Energieausweis: 
Angaben Energieausweis: Angaben soweit vorliegend, bzw. verfügbar.
 
Expose
 
Zum Drucken oder Aufbewahren können Sie das Expose herunterladen
 
Immo-SuchAgent (neu!)
 
Einfach die Eckdaten Ihrer Wunschimmobilie eingeben und auch in Zukunft informiert bleiben!
 
Objektmerker
 
Dem Objektmerker hinzufügen.
 
Kontaktformular
 
Strecker-Olenyi
Herr Joachim Raber

Telefon: (0721) 96 24 6-63
Telefax: 07 21 – 9 62 46 – 69

Alle Objekte des Anbieters anzeigen

Weitere Informationen zum Anbieter
Anrede:
Vorname*:
Nachname*:
Straße / Nr*:
PLZ / Stadt*:
Telefon:
E-Mail*:
Ihre Wünsche:  
Bitte informieren Sie mich auch über vergleichbare Objekte.
Ich habe die Datenschutzerklärung gelesen und bestätige die Verwendung meiner Daten.
 
Rechtlicher Hinweis: Für die Inhalte sowie Richtigkeit und Aktualität des Angebots ist allein der Anbieter verantwortlich. Weitere gesetzlich vorgeschriebene Angaben zum Anbieter entnehmen Sie bitte, sofern nicht unter den weiteren Informationen des Anbieters angegeben, dessen eigener Webseite die wir unter genannter Seite anführen. Wenn Sie Ihre Telefonnummer angeben, geben Sie Ihre Einwilligung vom Anbieter zurückgerufen zu werden.
trenner
 
mannheim fertighaus center
 
wertermittlung
 
trenner
trenner
:Datenschutzerklärung | Wohnung in Karlsruhe kaufen | Haus in Karlsruhe kaufen | Immobilien in Karlsruhe | Immobilien in Pforzheim | Immobilien in Stuttgart | Kontakt | Impressum  | AGB