trenner
Immobilien Karlsruhe
trenner
home      suchen      wohnimmobilien      gewerbeimmobilien      firmen & makler      gesuch aufgeben      dienstleistungen      immo-magazin      
trenner
trenner
trenner trenner
Marktplatz
Gesuch aufgeben
Gesuche anzeigen
trenner
Immobilien
Wohnung Miete
Wohnung Kauf
Haus Miete
Haus Kauf
Möbliertes Wohnen
Alle Grundstücke
Grundstücke (Miete/Pacht)
Grundstücke (Kauf)
trenner
Suchen
Schnellsuche ImmoID
Erweiterte Suche
trenner
Immobilien anbieten
Private Anbieter
Gewerbliche Anbieter
trenner
Login
trenner
trenner
trenner
trenner Passwort vergessen
trenner Registrieren
trenner Als Makler registrieren
trenner
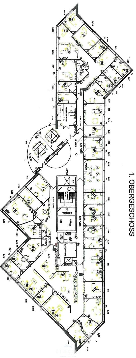
ImmoID: 109796    Mieterprovisionsfrei und klimatisierte Büroetage mit ca. 1.502 m² in Ettlingen
 
Detailansicht zurück
 
Kartenansicht Umgebungskarte
 
Weitere Ansichten
 
 
Daten
 
Beschreibung:Helle klimatisierte Etage mit ca. 1.502 m² in einem attraktiven Bürohaus im I.OG. Ausreichend zusätzlich anmietbare Kfz-Stellplätze befinden sich hinter dem Gebäude. Zusätzlich ist eine aktive Cafeteria im II.OG vorhanden. Die entgeltliche Mitnutzung dieser Occasion ist ausdrücklich vermieterseits erwünscht. In jedem Geschoss ist eine kleine zentral gelegene Teeküche vorhanden. Bei Bedarf können bis zu 394 m² Lagerfläche im Hanggeschoß oder weitere Büroflächen im EG mitangemietet werden. Die Freistellung erfolgt kurzfristig nach Vereinbarung.
Ort:76275 Ettlingen
Lage:Verkehrsgünstige und exponierte Lage im Gewerbegebiet Ettlingen-West. Der BAB-A5 Anschluß Karlsruhe-Süd ist in wenigen Fahrminuten erreichbar. Ebenso die B-3 mit weiteren Anschluß nach Karlsruhe, bzw. die B-10 (Südtangente)
Sonstiges:Ein Energieausweis ist vorhanden. Verbrauchssausweis Erstelldatum: 18.07.2024 Gültig bis: 18.07.2034 Baujahr: 1992 Energieträger für Heizung und Warmwasser: Gas Endenergiebedarf Strom: 79,5 kWh/(m²*a) Endenergiebedarf Wärme: 106,8 kWh/(m²*a) Ein neuer Energieausweis wird gerade erstellt. Alle Beträge sind Nettobeträge und verstehen sich zzgl. der gesetzl. MwSt
Bürofläche: 1502 m²
Anbieter-Objekt-Nr.: 2024057
Daten Energieausweis: Energieausweises: Verbrauch
Angaben Energieausweis: Energieausweises: Verbrauch
Angaben soweit vorliegend, bzw. verfügbar.
 
Expose
 
Zum Drucken oder Aufbewahren können Sie das Expose herunterladen
 
Immo-SuchAgent (neu!)
 
Einfach die Eckdaten Ihrer Wunschimmobilie eingeben und auch in Zukunft informiert bleiben!
 
Objektmerker
 
Dem Objektmerker hinzufügen.
 
Kontaktformular
 
Strecker-Olenyi
Herr Joachim Raber

Telefon: (0721) 96 24 6-63
Telefax: 07 21 – 9 62 46 – 69

Alle Objekte des Anbieters anzeigen

Weitere Informationen zum Anbieter
Anrede:
Vorname*:
Nachname*:
Straße / Nr*:
PLZ / Stadt*:
Telefon:
E-Mail*:
Ihre Wünsche:  
Bitte informieren Sie mich auch über vergleichbare Objekte.
Ich habe die Datenschutzerklärung gelesen und bestätige die Verwendung meiner Daten.
 
Rechtlicher Hinweis: Für die Inhalte sowie Richtigkeit und Aktualität des Angebots ist allein der Anbieter verantwortlich. Weitere gesetzlich vorgeschriebene Angaben zum Anbieter entnehmen Sie bitte, sofern nicht unter den weiteren Informationen des Anbieters angegeben, dessen eigener Webseite die wir unter genannter Seite anführen. Wenn Sie Ihre Telefonnummer angeben, geben Sie Ihre Einwilligung vom Anbieter zurückgerufen zu werden.
trenner
 
mannheim fertighaus center
 
wertermittlung
 
trenner
trenner
:Datenschutzerklärung | Wohnung in Karlsruhe kaufen | Haus in Karlsruhe kaufen | Immobilien in Karlsruhe | Immobilien in Pforzheim | Immobilien in Stuttgart | Kontakt | Impressum  | AGB